ACROPLAN
Massivhäuser und individuelle Bauprojekte
ACROPLAN - Massivhäuser und individuelle Bauprojekte
Ihr Partner für Haus und Immobilie

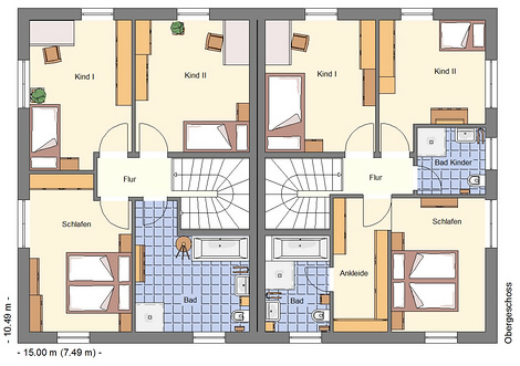
Doppelhaus 256